PROPERTY DETAILS

Management Office
30 S Munn Avenue
Suite 25
East Orange, NJ 07018
Phone:(973) 498-4001
info@metropolitanamerica.com
Contact Us
303 Washington Street, Newark, NJ
| RENT/MONTH | BEDS | BATH |
|---|---|---|
| $2,100 - $3,500 | 1 - 3 | 1 - 2 |
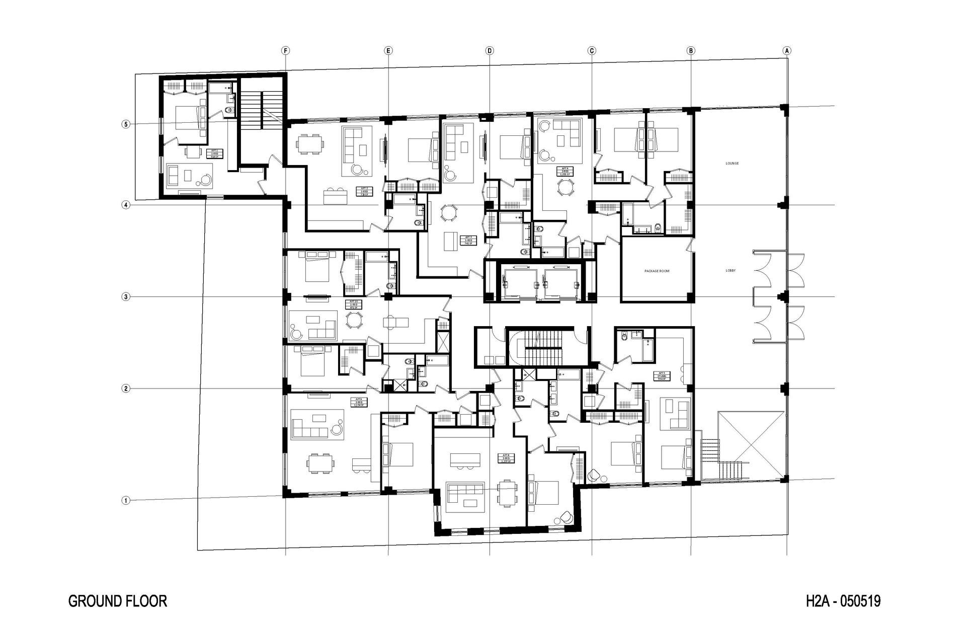
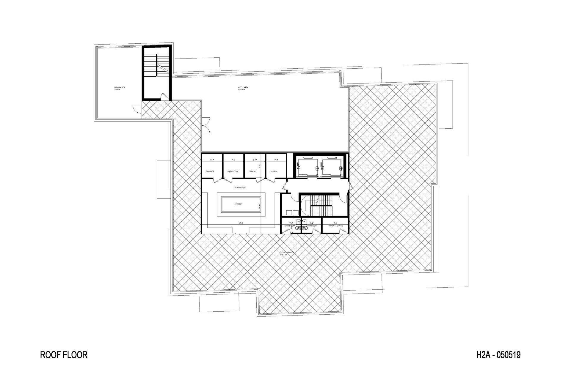
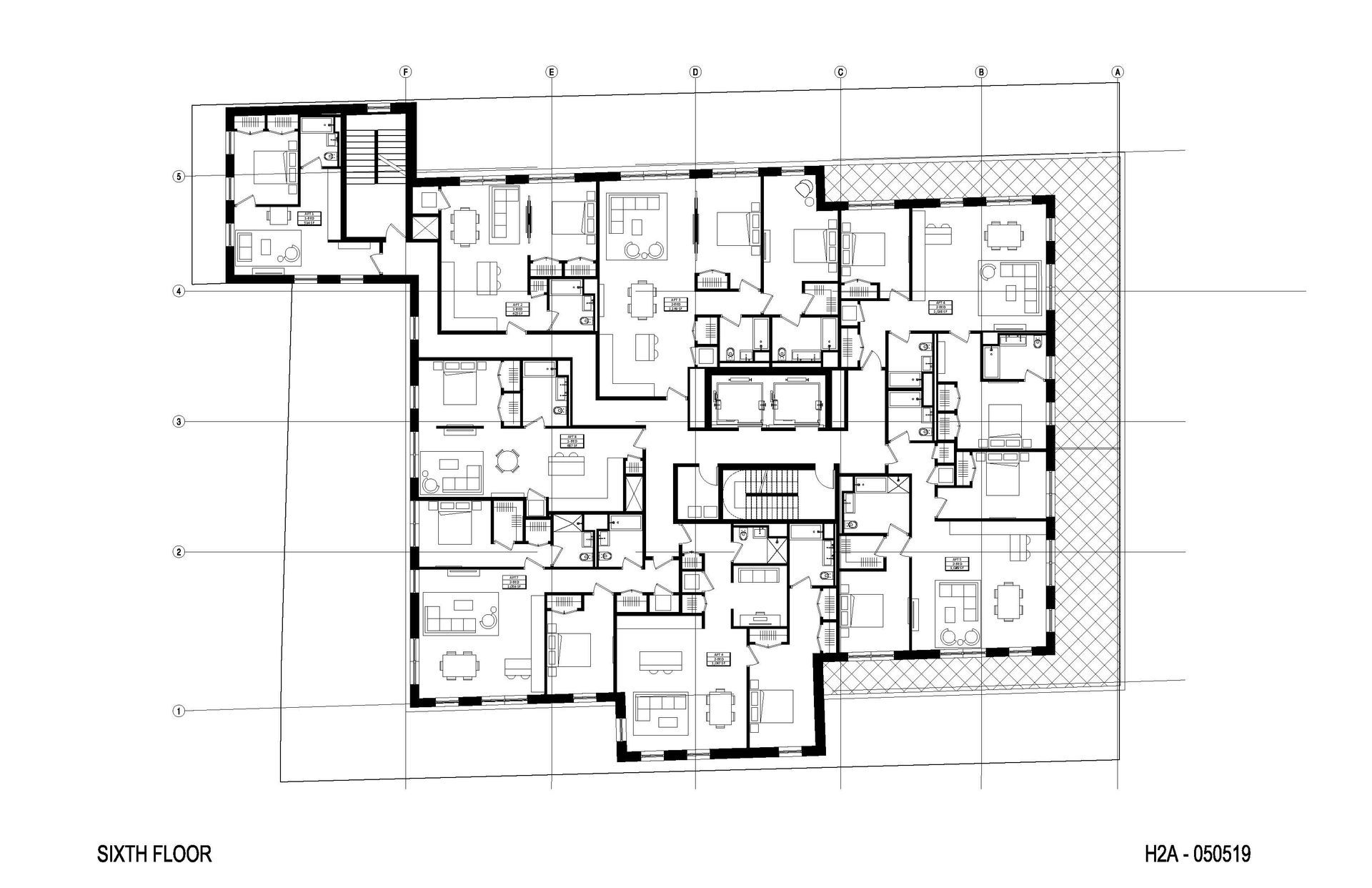
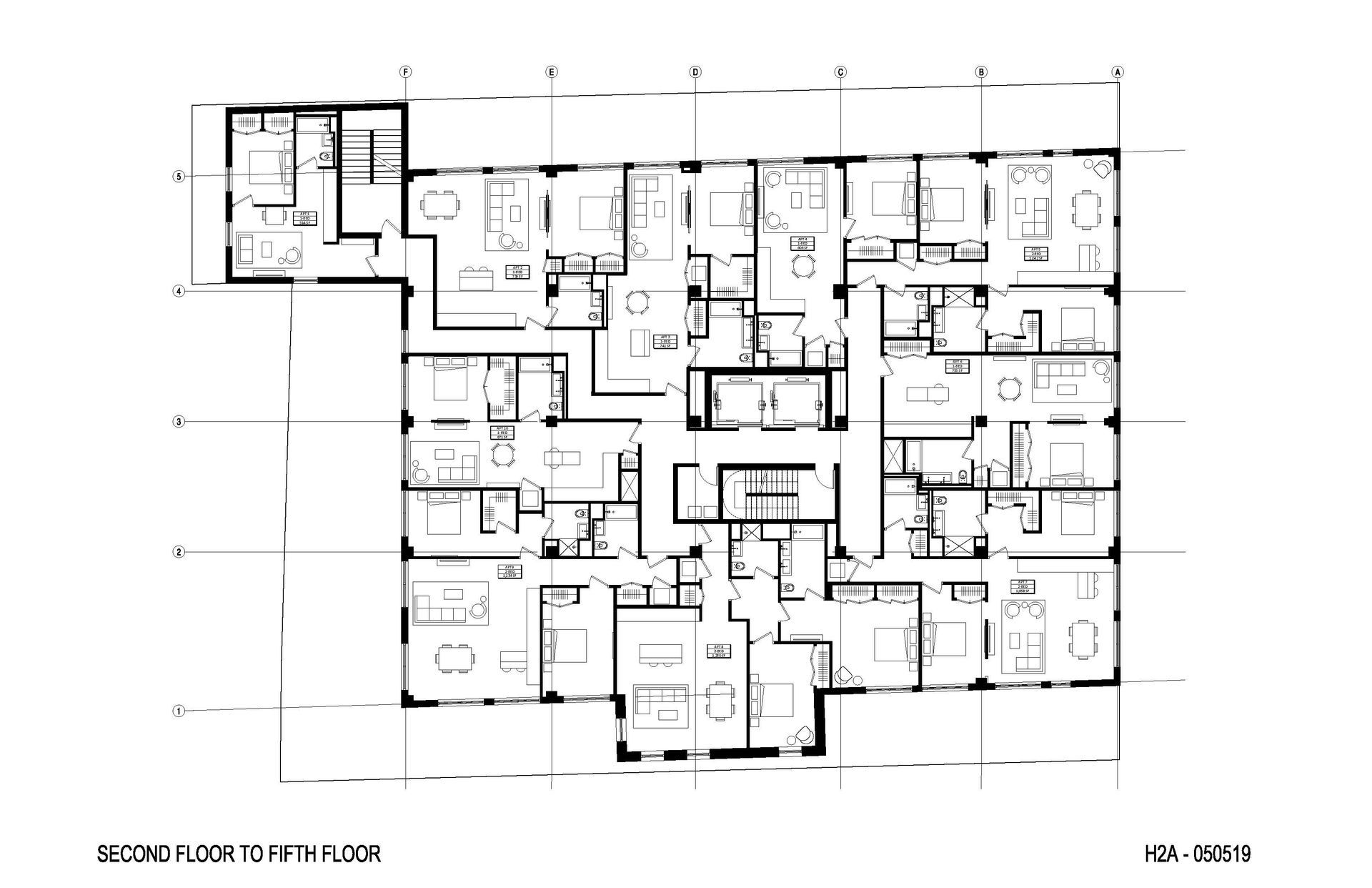
In this adaptive reuse redevelopment project, new life is being breathed in a 99-year old building that was designed by local Newark architect George Elwood Jones in June of 1922. The new building design will set a new standard for residential development in the Newark area, creating a way of living based on high-end design, wellness, health and sustainability.
The project consists in the renovation of the existing 50,000 sq/ft existing brick and steel warehouse, built in the early 20th century and a 50,000 sq/ft new 4-story addition, to be cladded in glass and oversized black panels. All the windows in the existing building are being replaced and the brick facade restored to its original beauty.
Modern luxury living conveniently located next to Prudential, Audible, Rutgers and easy access to Penn Station. Boutique style Living in area surrounding The Distrikt is rich, full of life, and bursting with retail and entertainment.
It will start occupancy before the end of 2025.
















